Top.Mail.Ru

Загрузка

...
Город: Москва
+7(495)995-39-32 - отдел по работе с корпоративными Клиентами
+7(495)995-40-39 - оптово-розничный отдел

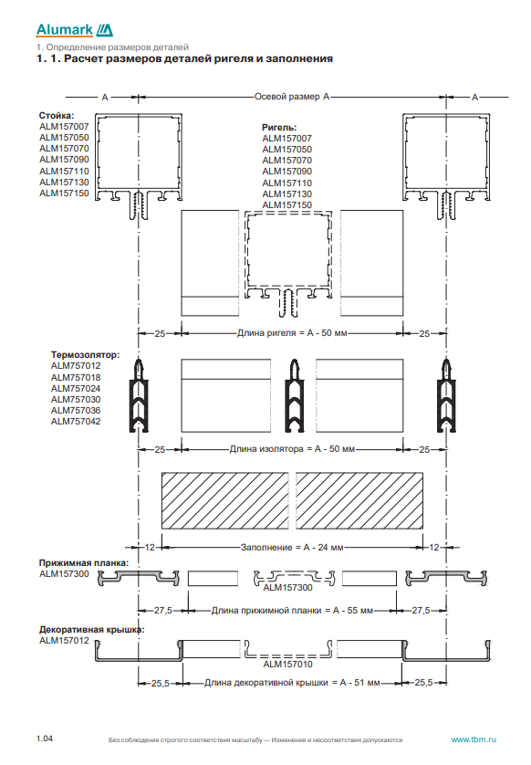
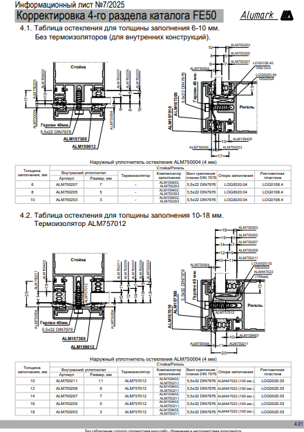
Серия FE50